Łódź, Widzew

Dom na wynajem

Opis nieruchomości

Świetnie zaprojektowany, nowoczesny, energooszczędny i komfortowy dom gotowy do pierwszego zamieszkania 
 
O powierzchni całkowitej 158,12 m2 położony w cichym, uroczym miejscu, na zagospodarowanej działce o pow. 542 m2, w sąsiedztwie lasu, na ekskluzywnym osiedlu domów "Osiedle Stróża" (800 m od granicy Łodzi, 2,7 km - 4 min. samochodem od centrum Andrespola,  5 km - 7 min. od autostrady A-1, 14,7 km od ul. Piotrkowskiej w Łodzi).
 
Dom oferuje przestronne, widne i funkcjonalne wnętrza
Wykończone z najwyższą starannością (dbałość o detale) oraz z wysokiej klasy materiały
 
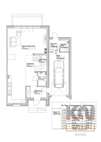
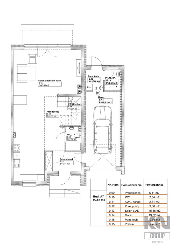
Parter:
- wygodny, słoneczny salon z kominkiem oraz bezpośrednim wyjściem na taras i ogród; 
- aneks kuchenny umeblowany i wyposażony w zmywarkę,  płytę indukcyjną, piekarnik, okap i lodówko-zamrażarkę;
- łazienkę z WC wyposażoną w natrysk - obecnie zainstalowana kabina typu walk-in;
- hall;
- przedpokój z szafą w zabudowie;
- zamykany schowek pod schodami;
- kotłownia gazowa z wydzielonym pomieszczeniem na pralnię;
- obszerny garaż w bryle budynku z bezpośrednim wejściem na część mieszkalną;
- ogrzewany duży garaż o pow. 20 mz bezpośrednim wejściem do domu i wyjściem na ogród (brama garażowa i wjazdowa elektryczna sterowana pilotem);
- dodatkowe pomieszczenie gospodarcze nad garażem o pow. 30 m2, z wysuwanymi schodami z sufitu (idealnie sprawdzi się jako magazyn opon, nart sprzętu sportowego i ogrodowego). 
 

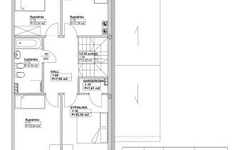
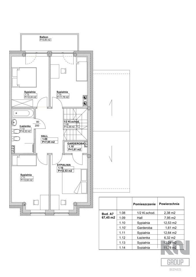
Piętro:
- dwie sypialnie z wyjściem na balkon i garderobą;
- dwa dodatkowe pokoje mogące służyć jako kolejne sypialnie idealnie też się sprawdzą jako gabinet, pokoje dziecięce, pokój hobby itp.;
- łazienkę z WC i bidetem wyposażoną w wannę i kabinę prysznicową typu walk-in; 
- przestronny hall;

Obecnie dom nie jest umeblowany, ale na życzenie Najemcy dom może zostać umeblowany i wyposażony według Państwa upodobań i potrzeb. 

Poddasze:
- strych/pomieszczenie gospodarcze o pow. ok. 20 m2 z wysuwanymi schodami z sufitu. 

Ogród:
- zainstalowany system automatycznej, samojezdnej kosiarki; 
- cały teren wyłożony siatką na krety i przykryty trawą oraz w obrzeżu działki tujami;
- system automatycznego podlewania ogrodu i zieleni wokół domu.

Dodatkowe informacje: 
- w domu zainstalowany jest system alarmowy i telewizji kablowej;
- ogrzewanie pomieszczeń podłogowe - kocioł dwufunkcyjny gazowy;
- w każdym pomieszczeniu znajduje się oddzielny sterownik do ustawiania temperatury, dzięki czemu jest to bardzo efektywny i energooszczędny system ogrzewania pomieszczeń;
- woda miejska;
- kanalizacja - szambo - (w okresie do pół roku dom będzie podłączony do sieci miejskiej);
- gaz miejski;
- dodatkowe zewnętrze oświetlenie domu i ogrodu;
- podjazd i alejki z kostki brukowej. 
- wideodomofon. 

Opłaty:
Czynsz najmu: 6000 zł/m-c
Czynsz administracyjny: brak
Opłata za zużycie energii elektrycznej, wody oraz gazu: płatna według wskazań liczników ok. 600 zł miesięcznie 
Opłata za wywóz szamba: 100 zł - płatna po zapełnieniu zbiornika średnio raz na 2 miesiące
Opłata za pakiet telewizji i Internetu (światłowód) - w zależności od wybranego pakietu koszt (100-170 zł)
Kaucja zwrotna: 10.000 zł
Możliwość wystawienia faktury za najem

Całkowity miesięczny koszt najmu nie powinien przekroczyć 7000 zł 

Minimalny okres najmu 12 miesięcy



Nieruchomość wyróżnia wspaniałe położenie w bardzo dobrej lokalizacji, na kameralnym i zielonym osiedlu, z szybkim dojazdem do Łodzi oraz do autostrady A-1 i A-2; pięknie zagospodarowana działka, doskonała funkcjonalność budynku, wygodny rozkład pomieszczeń, oraz wysoka jakość materiałów wykończeniowych.
 
Spokojna okolica gwarantuje poczucie bezpieczeństwa i ciszy, a zarazem oferuje w bardzo bliskiej odległości pełną infrastrukturę miejską (galeria handlowa, szkoły, przedszkola, apteka, siłownia/fitness, sklepy spożywcze i wielobranżowe, supermarket, restauracje i pizzerię z kręgielnią).
 
Polecam i zapraszamy na prezentację.

Nota prawna

Opis oferty zawarty na stronie internetowej sporządzany jest na podstawie oględzin nieruchomości oraz informacji uzyskanych od właściciela, może podlegać aktualizacji i nie stanowi oferty określonej w art. 66 i następnych K.C.

Szczegóły oferty

Symbol oferty K2G-DW-2472
Powierzchnia 158,12 m²
Powierzchnia użytkowa 158,12 m²
Powierzchnia działki 542 m²
Powierzchnia balkonów/tarasów 20,00 m²
Liczba pokoi 5
Rodzaj domu bliźniak
Technologia budowlana bloczki betonowe
Kaucja zabezp. 10000
Standard
Liczba pięter w budynku 1
Garaż w bryle
Stan prawny Własność
Typ kaucji do uzgodnienia
Okna PCV
Instalacje nowe
Balkon duży
Liczba balkonów 1
Liczba tarasów 1
Zagosp. działki zagospodarowana
Ukształtowanie działki płaska
Kształt działki prostokąt
Pokrycie dachu dachówka ceramiczna
Pozwolenie na użytkowanie tak
Stan budynku wysoki standard
Ogrodzenie działki siatka w ramach
Rok budowy 2021
Gaz tak - miejski
Woda tak - miejska
Dojazd droga utwardzona
Otoczenie działki zabudowane
Ogrzewanie gazowe
Umeblowanie do uzgodnienia
Alarm tak
Tarasy taras
Drzwi antywłamaniowe tak
Prąd w budynku
Kanalizacja szambo

Pomieszczenia

Powierzchnia pokoi 45,46; 12,24; 11,78; 12,64; 15,53; m2
Podłogi pokoi panele
Typ kuchni z nowoczesną zabudową kuchenną
Rodzaj kuchni aneks kuchenny - połączony z salonem
Podłoga kuchni gres
Wyposażenie kuchni garnki, lodówko-zamrażarka,, meble kuchenne na wymiar, naczynia, okap, piekarnik, płyta indukcyjna, sprzęt AGD, stała zabudowa, szafki kuchenne, szafki wiszące, wyposażenie drobne, zabudowa kuchenna, zlewozmywak z baterią, zmywarka
Typ łazienki razem z wc
Liczba łazienek 2
Powierzchnia łazienki 6,32; 2,84; m2
Glazura łazienki nowego typu
Podłoga łazienki terakota
Wyposażenie łazienki bidet, lustro, natrysk, prysznic, umywalka, wanna, WC
Wyposażenie dodatkowe bidet, lustro, szafki, Wanna
Liczba przedpokoi 2
Podłoga przedpokoi gres

Lokalizacja

Podobne oferty

wynajęte
dom na wynajem - Łódź, Widzew, Stokowska

dom na wynajem

Łódź, Widzew, Stokowska
5 pokoi 125,00 m2 36,00 zł/m2
wynajęte
dom na wynajem - Łódź, Bałuty, Julianów, Krzewowa

dom na wynajem

Łódź, Bałuty, Julianów, Krzewowa
5 pokoi 280,00 m2 19,64 zł/m2
wynajęte
dom na wynajem - Łódź, Widzew, Janów, Maćka z Bogdańca

dom na wynajem

Łódź, Widzew, Janów, Maćka z Bogdańca
6 pokoi 165,00 m2 35,76 zł/m2
wynajęte
dom na wynajem - Łódź, Górna, Gadka Stara, Zastawna

dom na wynajem

Łódź, Górna, Gadka Stara, Zastawna
5 pokoi 84,12 m2 59,44 zł/m2

Napisz do nas

Proszę wypełnić to pole
Proszę wypełnić to pole
Proszę wypełnić to pole
Proszę wypełnić to pole

Ta strona wykorzystuje pliki cookies w celach statystycznych oraz w celu dostosowania naszych serwisów do indywidualnych potrzeb klientów. Zmiany ustawień dotyczących plików cookie można dokonać w dowolnej chwili modyfikując ustawienia przeglądarki. Korzystanie z tej strony bez zmian ustawień dotyczących cookies oznacza, że będą one zapisane w pamięci urządzenia.

rozumiem